无人叉车AGV应用于食品行业

该项目客户现主要生产雪米饼、香米饼、馍片、馍丁、肉松饼、派类蛋糕、香酥脆、巧趣角、绿豆沙拉等休闲系列食品,集“营养、美味、绿色、休闲”的产品特点于一身,畅销全国二十多个省、市、自治区,并出口韩国,远销东南亚,很受消费者喜爱。
项目背景
搬运物料:完成食品馍、塑料托盘
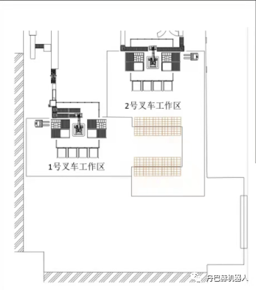
项目场景:成品仓库
搬运流程:码垛区搬运至成品周转区,再空托盘上线
作为食品行业领导者,该企业率先决定引入机器人技术来应对难题,在面对市面上众多机器人设备提供商,坚持技术方案优先原则
项目难点
作业效率:代替人工高强度作业,降低失误率
协同对接:对接输送线、码垛机,高效协同
环境改善:体积小、噪音低、电动无污染。
解决方案
产品选型:C3系列平衡重AGV叉车 X 2
配套产品:自动充电桩 X 2
手工充电器 X 1
系统配置:AGV调度系统 上位机 无线局域网


由于该公司生产零食小件产品,货物量大,货物生产波次频繁,出入库流量大,导致搬运效率低下,且在新零售模式的影响下,需要有较高的时效性、准确性,因此对搬运流程进行智能化是必要途径。
无人叉车通过控制系统、导航系统等远程模块进行对接,使多台叉车能够做到全区域自动作业。
无人叉车采用激光导航动态适应环境,车身标配激光雷达实现360度全方位避障,同时配备前后防撞条和急停按钮,保障人、车、货安全。

应对企业订单峰值情况,丹巴赫机器人提供多种解决方案,配套自动充电桩和手工充电器,保证机器人7*24小时持续作业,不会停产。
叉车样式

平衡重式堆垛式叉车AGV是由一个驱动/转向的前轮和2个定向轮的结构。它适用于运输各种托盘或纸卷等搬运物料,并能够满足不同尺寸的负载单位。
下一篇:没有了



C19托盘式搬运叉车AGV
C2托盘式堆垛叉车AGV
四向穿梭车